Akropolis IJburg is een wooncoöperatie in oprichting. Hier wonen mensen van verschillende leeftijden en achtergronden samen en geven we vorm aan een nieuwe manier van wonen.We bouwen een kleine gemeenschap, als een dorp in de stad, met goed nabuurschap, betrokkenheid en aandacht voor elkaar.De woningen zijn 2-, 3- en 4-kamerappartementen van 45 tot 71 m². Er komen 23 middeldure en 8 sociale huurwoningen. We hebben een grote collectieve ruimte en op de vier verdiepingen 4 kleine ruimtes, waarvoor we samen een bestemming gaan bepalen. Denk aan een deelbibliotheek, een atelier, een muziekruimte om samen te jammen of een stilteplek om tot rust te komen.Op dit moment zijn er nog enkele woningen beschikbaar voor mensen die zich herkennen in ons idee van samen wonen.
Wij zijn een vereniging zonder winstoogmerk. Samen bieden we een alternatief voor de steeds duurdere woningmarkt. In onze wooncoöperatie blijven de woningen betaalbaar voor gewone mensen, nu én in de toekomst.We geloven in fijn samenleven, met aandacht voor elkaar en voor de buurt. Jong en oud wonen hier samen – ongeveer half en half – in woningen die we samen ontwikkelen, beheren en toekomstbestendig maken.Ons doel is eenvoudig: een plek waar mensen van verschillende leeftijden prettig en met respect samen kunnen wonen.
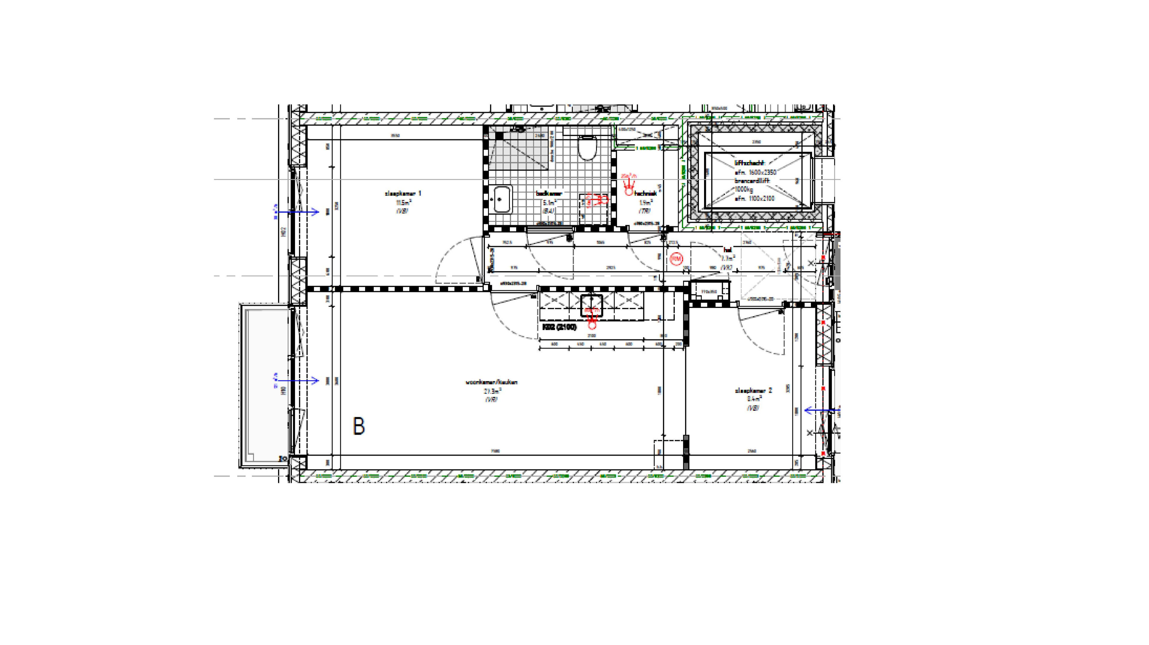
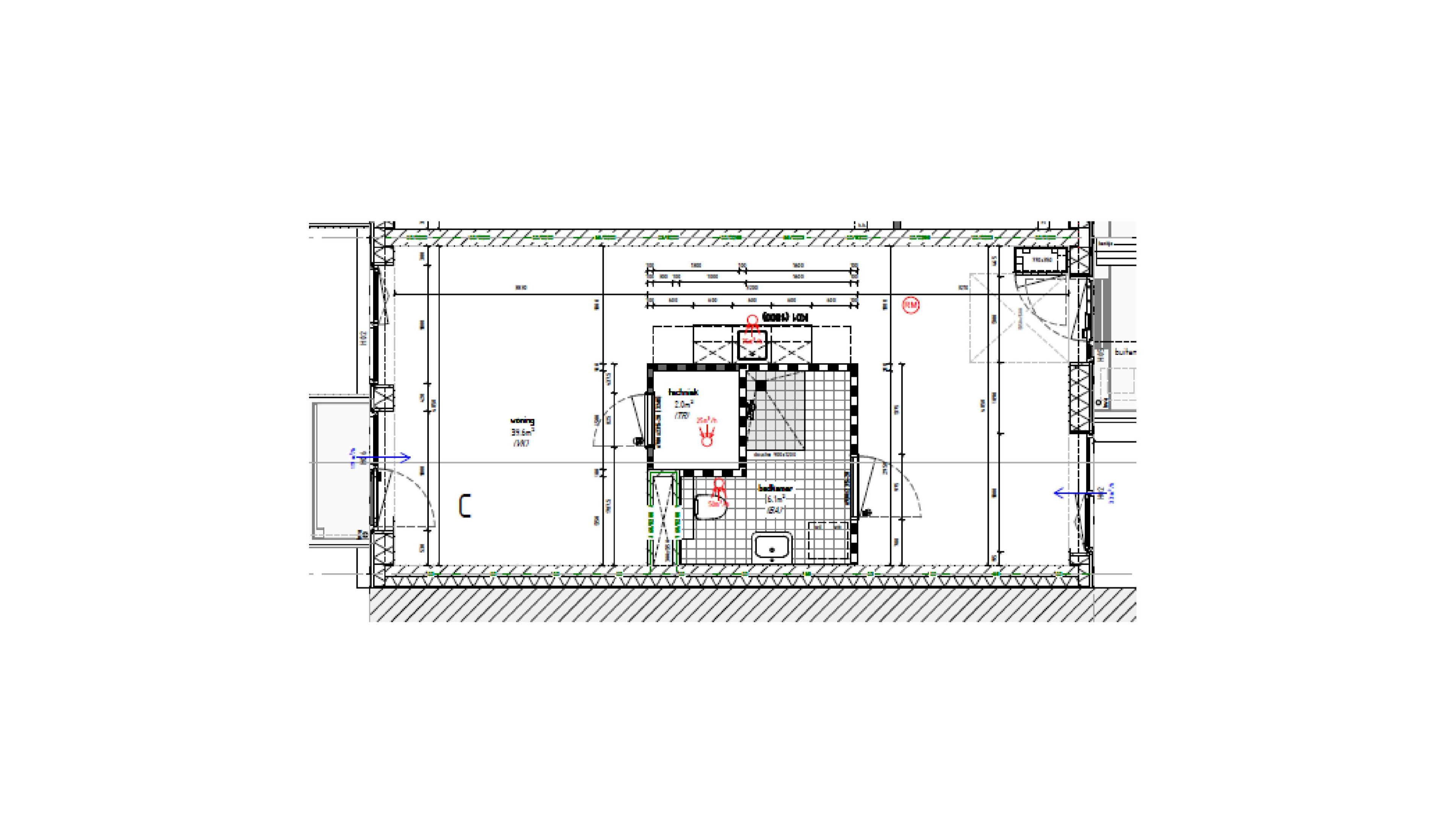
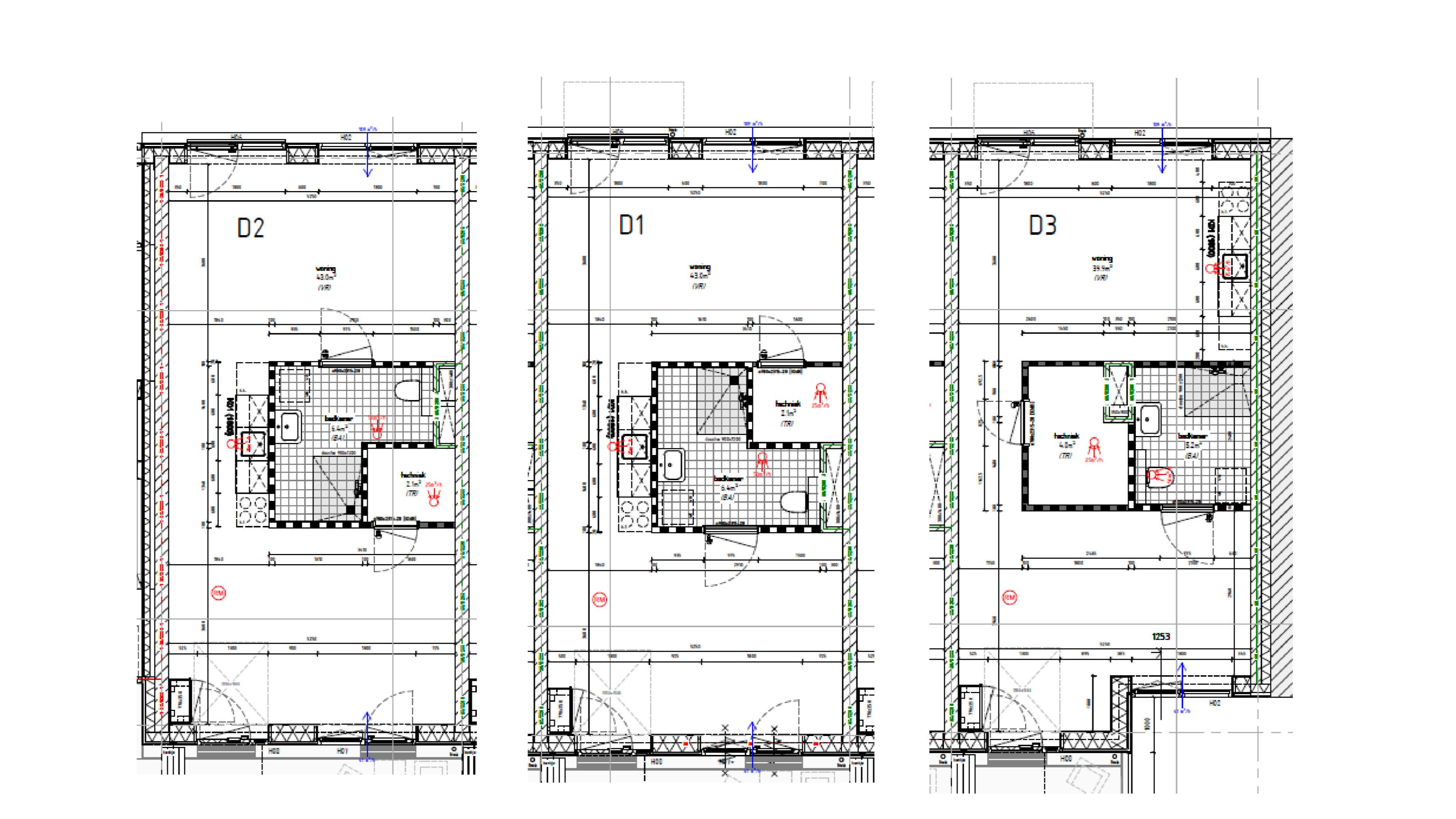
De nog beschikbare middeldure huurwoningen zijn 2-kamerappartementen van ruim 51 m² (type D3) en bijna 54 m² (type D1 en D2). Elke woning heeft een balkon of brede galerij als buitenruimte.De sociale huurwoningen zijn 2- en 3-kamerappartementen van ongeveer 45 tot 65m².Het gebouw is gasloos, bijna energieneutraal en voorzien van een lift, collectieve ruimtes en een binnentuin waar bewoners elkaar kunnen ontmoeten. De huur wordt jaarlijks aangepast aan de inflatie. Er zijn geen commerciële huurverhogingen.Huurprijs: vanaf €1.064 tot €1.087 voor de grootste middeldure woning (prijspeil 2025, exclusief ± €25 servicekosten).
Verwachte oplevering: juli 2026
Locatie: Cola Debrotstraat, Centrumeiland, IJburg, AmsterdamDe middeldure woningen zijn bedoeld voor mensen met een inkomen tussen €57.926 tot €81.633 (1-persoons huishouden) of €89.821 (tweepersoonshuishouden), prijspeil 2025. Voor alle woningen is een huisvestingsvergunning van de gemeente Amsterdam nodig.
Ons woonproject heeft een lange weg afgelegd, vol uitdagingen en slimme keuzes. Na jaren van voorbereidingen, vertragingen en het rondkrijgen van de financiering, is de bouw in april 2025 gestart.We hebben idealen en realiteit zorgvuldig op elkaar afgestemd en een solide businesscase gerealiseerd, ondanks stijgende bouwkosten en rente. Dankzij de Rabobank en de gemeente Amsterdam is de financiering nu zeker en ligt er een stevig fundament onder onze woondroom.Vol vertrouwen kijken we uit naar oplevering begin zomer 2026, wanneer het gebouw er staat en onze visie op duurzaam, gemeenschappelijk wonen werkelijkheid wordt.
Participatie
Als lid investeer je mee in je woning. Voor middeldure huur leg je €26.000 in en voor sociale huur leg je €6.500 in. Je betaalt dit in twee delen. Het tweede deel betaal je pas bij de start van je huur. Verhuis je? Dan krijg je dit bedrag terug zodra er een nieuwe huurder komt.
| Huur | Eerste inleg (bij aanmelding) | Restant participatie (bij oplevering) |
|---|---|---|
| Middelduur: | €8.500 | €17.500 |
| Sociaal: | €2.000 | €4.500 |
Lid worden
Vul het formulier hieronder in als je interesse hebt. We nemen contact met je op voor een kennismakingsgesprek om elkaar beter te leren kennen. Is dat van beide kanten positief? Dan nodigen we je uit voor een ALV, waarna je aspirant-lid kunt worden.Entreegeld
Als aspirant-lid betaal je eenmalig €250 entreegeld en het eerste deel van het participatiebedrag. Daarnaast onderteken je een intentieovereenkomst. Verdere betalingen volgen pas bij de oplevering.Lidmaatschap
Als aspirant-lid voldoe je aan de inkomenseisen, neem je de participatie passend bij je woningtype en draag je actief bij aan de gemeenschap. Omdat we onze eigen wooncoöperatie zijn en deze samen draaiende zullen houden, verwachten we een actieve inzet van alle leden.Toewijzing
Woningen worden toegewezen door middel van een rangnummer die bij het kennismakingsgesprek worden toegewezen. Volwaardig lid word je op het moment dat het huurcontract in gaat en het volledige participatiebedrag is betaald.
Meld je aan via het interesseformulier. We kijken ernaar uit je te ontmoeten en samen te ontdekken of onze wooncoöperatie bij je past!









Credits: schetsen van architect Anke Zeinstra, foto's gemaakt door Linde Dorenbos